BÁN CĂN HỘ CHUNG CƯ TÒA B, DỰ ÁN IA20 CIPUTRA
Tọa lạc trong khu đô thị Nam Thăng Long, Chung cư IA20 được đầu tư thiết kế hiện đại, là một trong những sản phẩm hoàn hảo đáp ứng nhu cầu của khách hàng tầm trung với những giá trị sống khác biệt.
Tổng quan dự án Chung cư IA20

Dự án IA20 Ciputra được quy hoạch gồm 3 tòa chung cư cao 29-40 tầng, thiết kế 3 tầng hầm với cơ sở hạ tầng kỹ thuật đồng bộ. Tổng thể dự án được thiết kế hiện đại, ấn tượng với sự sắp xếp bố trí khéo léo, tinh tế, hài hòa. Từ nội thất đến trang thiết bị được quy hoạch bài bản đáp ứng theo tiêu chuẩn nơi an cư của người Á Đông, tạo nên những không gian sống lý tưởng đáp ứng nhu cầu của đông đảo khách hàng.
Căn hộ chung cư IA20 được thiết kế đa dạng diện tích từ 2-4 phòng ngủ, đáp ứng nhu cầu sử dụng cũng như tiềm lực tài chính của hộ gia đình. Với không gian mở cùng thiết kế liên thông giữa các phòng mang đến nét nổi bật của kiến trúc chung cư IA20. Thiết kế này không chỉ giúp khắc phục hạn chế về diện tích hẹp, tạo cảm giác thoáng rộng hơn cho căn hộ mà còn góp phần rút ngắn khoảng cách sinh hoạt chung của các thành viên trong gia đình. Giúp các thành viên vừa gắn kết, vừa đảm bảo tính riêng tư cho sinh hoạt cá nhân.
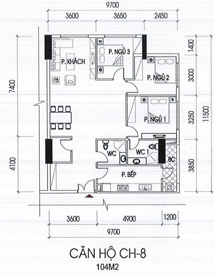
Thiết kế chi tiết tòa A, dự án chung cư IA20
Tòa B dự án IA20 được quy hoạch với chiều cao 40 tầng
Tổng diện tích sàn xây dựng: 91.397m2
Diện tích hầm để xe: 18.293m2
Số lượng căn hộ: 688 căn








Nếu quý vị đang muốn tìm kiếm một không gian sống lý tưởng với mức giá ưu đãi thì căn hộ IA20 là lựa chọn hoàn hảo. Bên cạnh giá trị sống, bạn sẽ được trải nghiệm không gian thư giãn tuyệt vời. Đừng chần chừ, nhanh tay liên hệ Sàn bất động sản Tân Long để được tư vấn hỗ trợ mua nhà.
Hotline: 0989.734.734
Cần mua căn 4 ngủ tòa B chung cư IA20 Ciputra, tầng 25, view sông Hồng, hướng Tây Nam
Giá: Liên hệ, Ref: VI2092Diện tích đất: 0 m2, Phòng ngủ: 4, Phòng tắm: 3Cần mua căn 4 ngủ tòa B chung cư IA20 Ciputra, tầng 25, view sông Hồng, hướng Tây Nam
Chính chủ gửi bán căn hộ 4 ngủ IA20 Ciputra hướng Đông Nam, full đồ nội thất
Giá: Liên hệ, Ref: VI2085Diện tích đất: 0 m2, Phòng ngủ: 4, Phòng tắm: 3Chính chủ gửi bán căn hộ 4 ngủ IA20 Ciputra hướng Đông Nam, full đồ nội thất
Cần mua căn hộ 4 ngủ tòa B IA20 Ciputra, hướng chính Nam, view sông Hồng, giá cả thương lượng
Giá: Liên hệ, Ref: VI2074Diện tích đất: 0 m2, Phòng ngủ: 4, Phòng tắm: 3Cần mua căn hộ 4 ngủ tòa B IA20 Ciputra, hướng chính Nam, view sông Hồng, giá cả thương lượng
Chính chủ cần chuyển nhượng căn hộ 3 phòng ngủ IA20 Ciputra, hướng Nam view tầng trung
Giá: Liên hệ, Ref: VI2068Diện tích đất: 0 m2, Phòng ngủ: 3, Phòng tắm: 2Chính chủ cần chuyển nhượng căn hộ 3 phòng ngủ IA20 Ciputra, hướng Nam view tầng trung
Cần mua căn hộ 2 phòng ngủ giá tốt view sông Hồng chung cư toà B IA20 Ciputra
Giá: Liên hệ, Ref: VI2001Diện tích đất: 92 m2, Phòng ngủ: 2, Phòng tắm: 2Cần mua căn hộ 2 phòng ngủ giá tốt view sông Hồng chung cư toà B IA20 Ciputra
Cần bán căn hộ đồ cơ bản tầng thấp 2 phòng ngủ view nội khu hướng Nam toà B IA20 Ciputra
Giá: Liên hệ, Ref: VI2000Diện tích đất: 0 m2, Phòng ngủ: 2, Phòng tắm: 2Cần bán căn hộ đồ cơ bản tầng thấp 2 phòng ngủ view nội khu hướng Nam toà B IA20 Ciputra
Bán nhanh căn góc 3 phòng ngủ tầng trung hướng Tây Bắc toà B IA20 Ciputra
Giá: Liên hệ, Ref: VI1999Diện tích đất: 110 m2, Phòng ngủ: 3, Phòng tắm: 2Bán nhanh căn góc 3 phòng ngủ tầng trung hướng Tây Bắc toà B IA20 Ciputra
Bán gấp căn hộ 2 phòng ngủ tầng trung hướng Tây Nam toà B IA20 Ciputra
Giá: Liên hệ, Ref: VI1998Diện tích đất: 92 m2, Phòng ngủ: 2, Phòng tắm: 2Bán gấp căn hộ 2 phòng ngủ tầng trung hướng Tây Nam toà B IA20 Ciputra
Cần bán căn góc 3 phòng ngủ 110m2 hướng Đông Nam view sông Hồng toà B IA20 Ciputra
Giá: Liên hệ, Ref: VI1997Diện tích đất: 110 m2, Phòng ngủ: 3, Phòng tắm: 2Cần bán căn góc 3 phòng ngủ 110m2 hướng Đông Nam view sông Hồng toà B IA20 Ciputra
Bán căn hộ 2 phòng ngủ đủ đồ tầng cao hướng Đông Bắc toà B IA20 Ciputra
Giá: Liên hệ, Ref: VI1996Diện tích đất: 92 m2, Phòng ngủ: 2, Phòng tắm: 2Bán căn hộ 2 phòng ngủ đủ đồ tầng cao hướng Đông Bắc toà B IA20 Ciputra
ĐĂNG KÝ MUA/THUÊ THEO YÊU CẦU CỦA QUÝ KHÁCH

- Tư vấn dự án
- Hotline dự án
0989.734.734
- LIÊN HỆ QUẢN LÝ
0989.734.734
- Tư vấn mua/thuê qua mạng
- Tìm kiếm
- Bán thấp tầng Noble Palace Tây Hồ
- Cho thuê thấp tầng Noble Palace Tây Hồ
- Thấp tầng Ciputra bán
- Bán biệt thự khu G1-G6-G9-G10 Ciputra
- Bán Biệt thự Khu C1-C2-C3-C4-C5-C7 Ciputra
- Bán biệt thự khu D1-D2-D3-D4-D5 Ciputra
- Bán biệt thự Khu T1->T9 Ciputra
- Bán biệt thự Khu Q Ciputra
- Bán biệt thự khu K1->K7 Ciputra
- Bán biệt thự khu P Ciputra
- Bán nhà liền kề khu P Ciputra
- Bán biệt thự Central Park Ciputra
- Bán nhà liền kề Ciputra Central Park
- Thấp tầng Ciputra cho thuê
- Cho thuê biệt thự khu P Ciputra
- Cho thuê biệt thự Central Ciputra Hanoi
- Cho thuê nhà liền kề Central Park Ciputra
- Thuê biệt thự khu G1-G6-G9-G10 Ciputra
- Thuê biệt thự Khu C1-C2-C3-C4-C5-C7 Ciputra
- Thuê biệt thự khu D1-D2-D3-D4-D5 Ciputra
- Thuê biệt thự Khu T1->T9 Ciputra
- Thuê biệt thự Khu Q Ciputra
- Thuê Biệt thự khu K1-K7 Ciputra
- Cho thuê nhà liền kề khu P Ciputra
- Cao tầng Kita Capital cho thuê
- Căn hộ Sunshine City cho thuê
- Thấp tầng Sunshine Riverside bán
- Thấp tầng Sunshine Riverside Cho thuê
- Thấp tầng Sunshine Wonder Villas Bán
- Thấp tầng Sunshine Wonder Villas Cho thuê
- Cho thuê căn hộ Sunshine Golden River
- Thấp tầng IA20 cho thuê
- Bán Noble Palace Tây Thăng Long
- Cho thuê Noble Palace Tây Thăng Long
- Tin tức
- Nhà mẫu Sunshine Continental Trần Bình và không gian trải nghiệm phong cách sống London tại Mỹ Đình
- Chính sách bán hàng Sunshine Continental Trần Bình và gói giải pháp tài chính ưu việt tại tâm điểm Mỹ Đình
- Giá bán Sunshine Continental Trần Bình và cơ hội tích sản hàng hiệu tại trung tâm Mỹ Đình
- Tiến độ xây dựng Sunshine Continental Trần Bình và sự hình thành biểu tượng kính Low-E tại Mỹ Đình
- Thiết kế Sunshine Continental Trần Bình và ngôn ngữ kiến trúc phủ kính panorama đỉnh cao tại Mỹ Đình













2024119161922.jpg)




